



М07
М07
М07
Площа: 165 м²
Площа: 165 м²
Площа: 165 м²
Локація: Київ
Локація: Київ
Локація: Київ
Рік: 2024
Рік: 2024
Рік: 2024
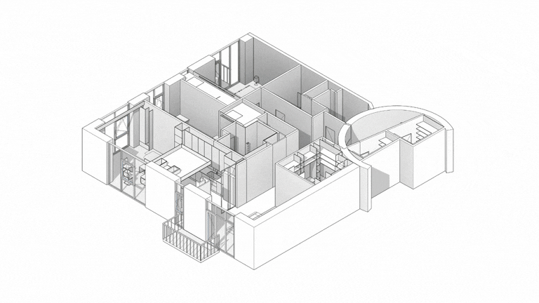
Квартира в самому серці Києва з неймовірним краєвидом стала проєктом про комфорт, відчуття дому й уважність до деталей. Ми повністю переосмислили вихідне планування, позбувшись незручних і нефункціональних рішень, та створили простір, який працює на комфортне щоденне життя замовників.
В інтер’єрі використані глибокі природні відтінки, натуральне дерево та травертин — матеріали, що додають тепла, спокою, не відволікаючи від головного — панорами міста за вікнами.
Ми сформували різні зони для певного настрою та ритму життя: для роботи, відпочинку, спілкування й моментів тиші. Для нас було принципово важливо відчути потреби замовників і запропонувати максимально продумане, чесне й комфортне рішення, у якому хочеться жити довго.
Квартира в самому серці Києва з неймовірним краєвидом стала проєктом про комфорт, відчуття дому й уважність до деталей. Ми повністю переосмислили вихідне планування, позбувшись незручних і нефункціональних рішень, та створили простір, який працює на комфортне щоденне життя замовників.
В інтер’єрі використані глибокі природні відтінки, натуральне дерево та травертин — матеріали, що додають тепла, спокою, не відволікаючи від головного — панорами міста за вікнами.
Ми сформували різні зони для певного настрою та ритму життя: для роботи, відпочинку, спілкування й моментів тиші. Для нас було принципово важливо відчути потреби замовників і запропонувати максимально продумане, чесне й комфортне рішення, у якому хочеться жити довго.
Квартира в самому серці Києва з неймовірним краєвидом стала проєктом про комфорт, відчуття дому й уважність до деталей. Ми повністю переосмислили вихідне планування, позбувшись незручних і нефункціональних рішень, та створили простір, який працює на комфортне щоденне життя замовників.
В інтер’єрі використані глибокі природні відтінки, натуральне дерево та травертин — матеріали, що додають тепла, спокою, не відволікаючи від головного — панорами міста за вікнами.
Ми сформували різні зони для певного настрою та ритму життя: для роботи, відпочинку, спілкування й моментів тиші. Для нас було принципово важливо відчути потреби замовників і запропонувати максимально продумане, чесне й комфортне рішення, у якому хочеться жити довго.
Інтерʼєри
Інтерʼєри
Інтерʼєри































