



27
27
27
Площа: 190 м²
Площа: 190 м²
Площа: 190 м²
Локація: Київська обл.
Локація: Київська обл.
Локація: Київська обл.
Рік: 2024
Рік: 2024
Рік: 2024
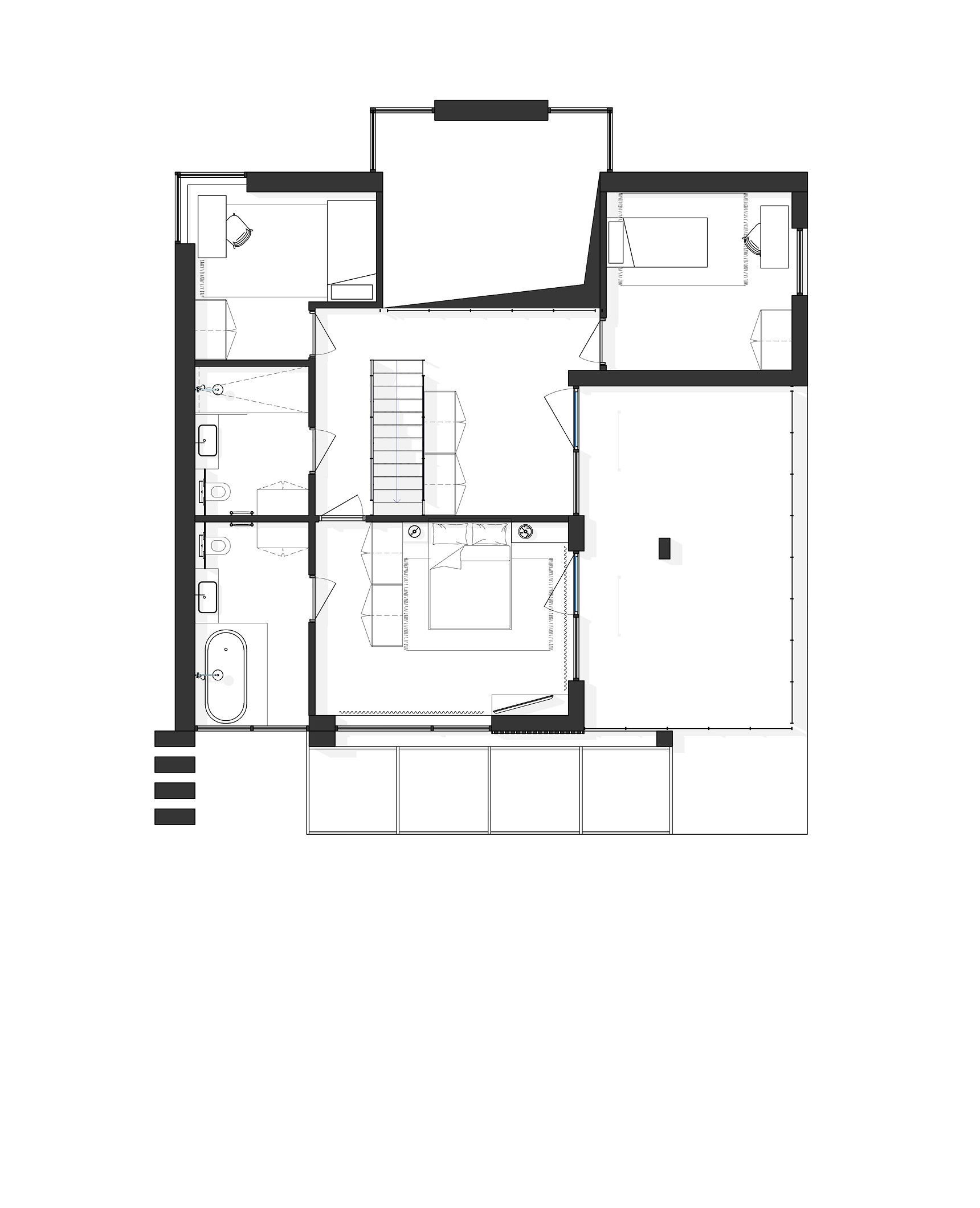
Сучасний котедж площею 96 м² спроєктований як компактне, екологічне та енергоефективне житло для комфортного повсякденного життя.
Архітектура поєднує лаконічні сучасні форми з продуманою орієнтацією та раціональним плануванням, що дозволяє максимально ефективно використовувати площу. У проєкті закладені принципи енергоефективного будівництва: якісна теплоізоляція, оптимальне природне освітлення та зменшене енергоспоживання.
Котедж створений як екологічний і комфортний дім, де простір, світло й матеріали працюють разом, формуючи збалансоване та стале середовище для життя.
Сучасний котедж площею 96 м² спроєктований як компактне, екологічне та енергоефективне житло для комфортного повсякденного життя.
Архітектура поєднує лаконічні сучасні форми з продуманою орієнтацією та раціональним плануванням, що дозволяє максимально ефективно використовувати площу. У проєкті закладені принципи енергоефективного будівництва: якісна теплоізоляція, оптимальне природне освітлення та зменшене енергоспоживання.
Котедж створений як екологічний і комфортний дім, де простір, світло й матеріали працюють разом, формуючи збалансоване та стале середовище для життя.
Сучасний котедж площею 96 м² спроєктований як компактне, екологічне та енергоефективне житло для комфортного повсякденного життя.
Архітектура поєднує лаконічні сучасні форми з продуманою орієнтацією та раціональним плануванням, що дозволяє максимально ефективно використовувати площу. У проєкті закладені принципи енергоефективного будівництва: якісна теплоізоляція, оптимальне природне освітлення та зменшене енергоспоживання.
Котедж створений як екологічний і комфортний дім, де простір, світло й матеріали працюють разом, формуючи збалансоване та стале середовище для життя.
Архітектура
Архітектура
Архітектура



























