



Kyiv Auto Grid 30 bays
Kyiv Auto Grid 30 bays
Kyiv Auto Grid 30 bays
Площа: 3000 м²
Площа: 3000 м²
Площа: 3000 м²
Локація: Київ
Локація: Київ
Локація: Київ
Рік: 2020
Рік: 2020
Рік: 2020
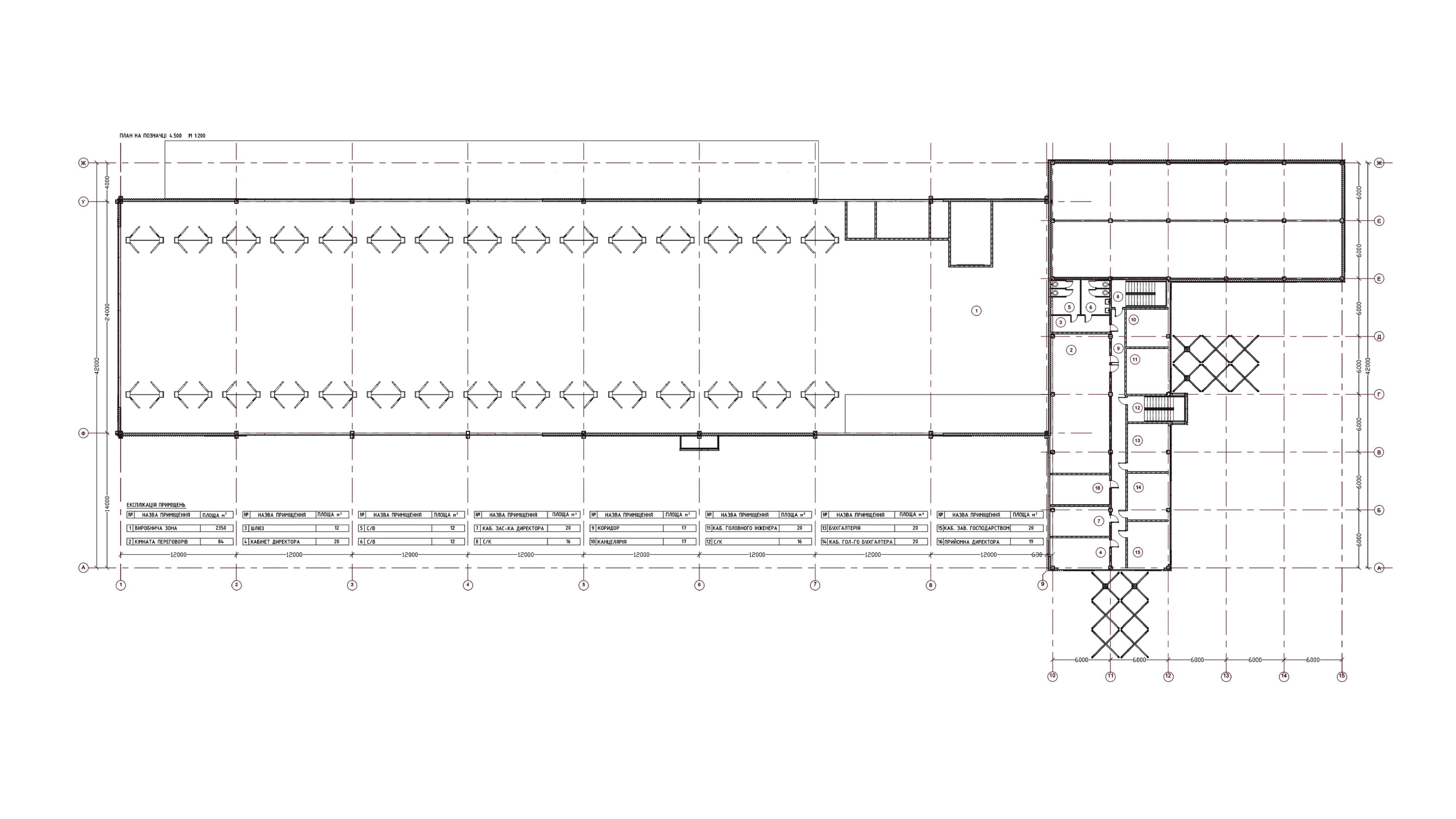
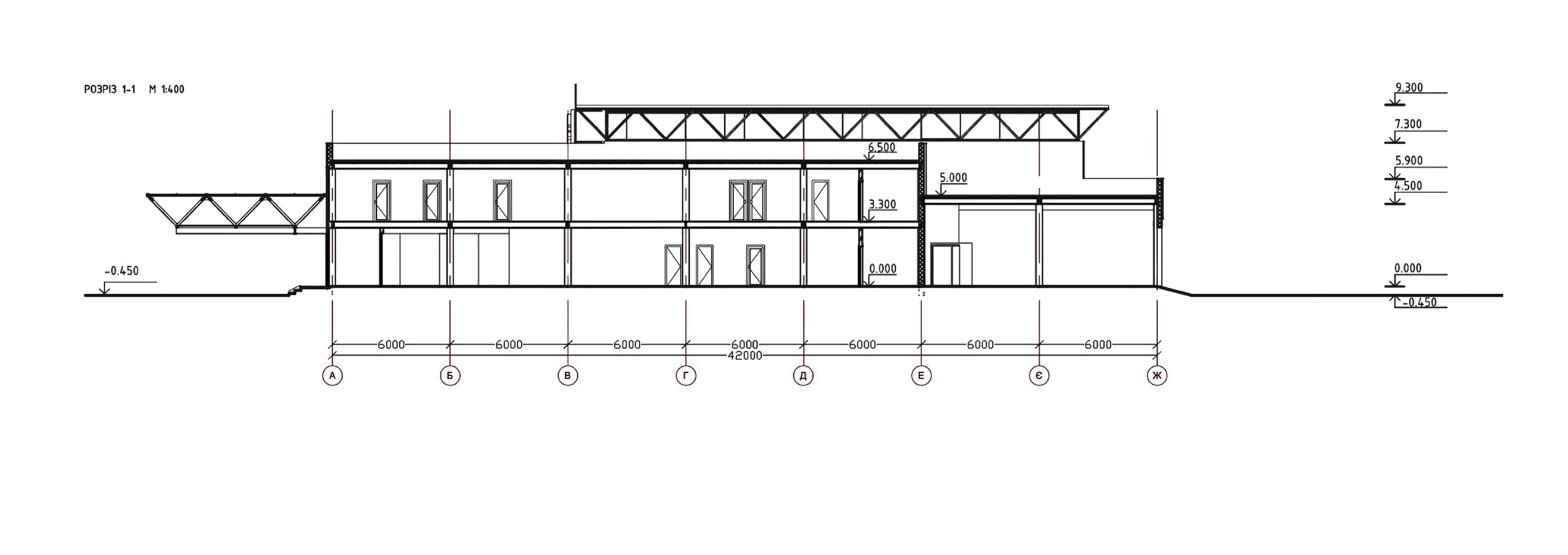
Kyiv Auto Grid — проєкт станції технічного обслуговування на 30 постів, спроєктований з максимальним фокусом на функціональність, ефективність процесів і комфорт користувачів.
Будівля площею 3000 м² (Київ, 2020) розроблена з урахуванням усіх технічних вимог обслуговування автомобілів: чітка логістика руху транспорту, раціональне зонування, зручні робочі простори для персоналу та зрозуміла організація сервісних потоків. Архітектура підпорядкована процесу без зайвих ускладнень, проте з увагою до деталей.
Фасад відіграє не лише репрезентативну, а й комунікаційну роль: він відкритий, зрозумілий і запрошуючий, викликає довіру та знижує відчуття “технічності” простору. Це дозволяє зробити перебування на станції максимально комфортним для клієнтів, не втрачаючи при цьому індустріального характеру об’єкта.
Проєкт демонструє, як інженерно складна типологія може бути вирішена через чітку архітектурну логіку, функціональну дисципліну та уважне ставлення до користувача.
Kyiv Auto Grid — проєкт станції технічного обслуговування на 30 постів, спроєктований з максимальним фокусом на функціональність, ефективність процесів і комфорт користувачів.
Будівля площею 3000 м² (Київ, 2020) розроблена з урахуванням усіх технічних вимог обслуговування автомобілів: чітка логістика руху транспорту, раціональне зонування, зручні робочі простори для персоналу та зрозуміла організація сервісних потоків. Архітектура підпорядкована процесу без зайвих ускладнень, проте з увагою до деталей.
Фасад відіграє не лише репрезентативну, а й комунікаційну роль: він відкритий, зрозумілий і запрошуючий, викликає довіру та знижує відчуття “технічності” простору. Це дозволяє зробити перебування на станції максимально комфортним для клієнтів, не втрачаючи при цьому індустріального характеру об’єкта.
Проєкт демонструє, як інженерно складна типологія може бути вирішена через чітку архітектурну логіку, функціональну дисципліну та уважне ставлення до користувача.
Kyiv Auto Grid — проєкт станції технічного обслуговування на 30 постів, спроєктований з максимальним фокусом на функціональність, ефективність процесів і комфорт користувачів.
Будівля площею 3000 м² (Київ, 2020) розроблена з урахуванням усіх технічних вимог обслуговування автомобілів: чітка логістика руху транспорту, раціональне зонування, зручні робочі простори для персоналу та зрозуміла організація сервісних потоків. Архітектура підпорядкована процесу без зайвих ускладнень, проте з увагою до деталей.
Фасад відіграє не лише репрезентативну, а й комунікаційну роль: він відкритий, зрозумілий і запрошуючий, викликає довіру та знижує відчуття “технічності” простору. Це дозволяє зробити перебування на станції максимально комфортним для клієнтів, не втрачаючи при цьому індустріального характеру об’єкта.
Проєкт демонструє, як інженерно складна типологія може бути вирішена через чітку архітектурну логіку, функціональну дисципліну та уважне ставлення до користувача.
Архітектура
Архітектура
Архітектура







































