



Quiet Forest Home
Quiet Forest Home
Quiet Forest Home
Площа: 176 м²
Площа: 176 м²
Площа: 176 м²
Локація: Київська обл.
Локація: Київська обл.
Локація: Київська обл.
Рік: 2024
Рік: 2024
Рік: 2024
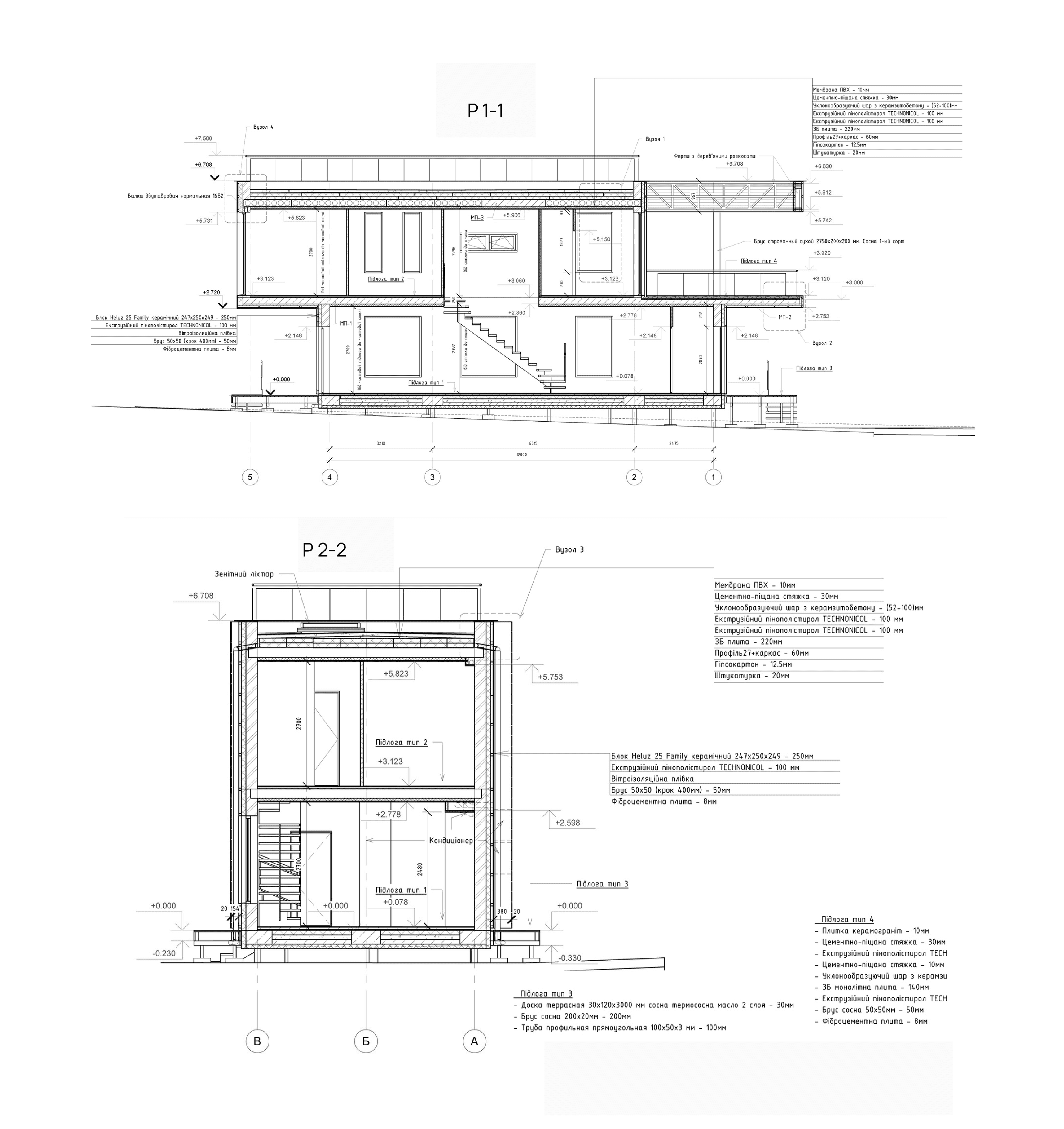
Каркасний житловий будинок у Київській області, розташований безпосередньо серед сосен і лісових дерев, спроєктований як компактне житло з максимальним відчуттям єдності з природою.
Проєкт виріс із дослідження модульного контейнерного будівництва, початково будинок розроблявся саме в цій логіці: компактність, швидкість зведення, раціональне використання простору. На наступному етапі концепція була адаптована під каркасне будівництво, що дозволило м’якше інтегрувати об’єм у природне оточення та розширити архітектурні й просторові можливості.
Архітектура будинку стримана й лаконічна, вона не конкурує з лісом, а стає його продовженням. Компактні габарити поєднуються з відкритими візуальними зв’язками з довкіллям, природним освітленням і відчуттям постійної присутності природи всередині житлового простору.
Проєкт демонструє, як невеликий за площею будинок може бути повноцінним, комфортним і емоційно насиченим, коли архітектура працює з контекстом, а не проти нього. Це дім для життя в тиші серед лісу й в усвідомленому контакті з середовищем.
Каркасний житловий будинок у Київській області, розташований безпосередньо серед сосен і лісових дерев, спроєктований як компактне житло з максимальним відчуттям єдності з природою.
Проєкт виріс із дослідження модульного контейнерного будівництва, початково будинок розроблявся саме в цій логіці: компактність, швидкість зведення, раціональне використання простору. На наступному етапі концепція була адаптована під каркасне будівництво, що дозволило м’якше інтегрувати об’єм у природне оточення та розширити архітектурні й просторові можливості.
Архітектура будинку стримана й лаконічна, вона не конкурує з лісом, а стає його продовженням. Компактні габарити поєднуються з відкритими візуальними зв’язками з довкіллям, природним освітленням і відчуттям постійної присутності природи всередині житлового простору.
Проєкт демонструє, як невеликий за площею будинок може бути повноцінним, комфортним і емоційно насиченим, коли архітектура працює з контекстом, а не проти нього. Це дім для життя в тиші серед лісу й в усвідомленому контакті з середовищем.
Каркасний житловий будинок у Київській області, розташований безпосередньо серед сосен і лісових дерев, спроєктований як компактне житло з максимальним відчуттям єдності з природою.
Проєкт виріс із дослідження модульного контейнерного будівництва, початково будинок розроблявся саме в цій логіці: компактність, швидкість зведення, раціональне використання простору. На наступному етапі концепція була адаптована під каркасне будівництво, що дозволило м’якше інтегрувати об’єм у природне оточення та розширити архітектурні й просторові можливості.
Архітектура будинку стримана й лаконічна, вона не конкурує з лісом, а стає його продовженням. Компактні габарити поєднуються з відкритими візуальними зв’язками з довкіллям, природним освітленням і відчуттям постійної присутності природи всередині житлового простору.
Проєкт демонструє, як невеликий за площею будинок може бути повноцінним, комфортним і емоційно насиченим, коли архітектура працює з контекстом, а не проти нього. Це дім для життя в тиші серед лісу й в усвідомленому контакті з середовищем.
Архітектура, інтер’єри
Архітектура, інтер’єри
Архітектура, інтер’єри































