



ReLearn
ReLearn
ReLearn
Площа: 15 963 м²
Площа: 15 963 м²
Площа: 15 963 м²
Рік: 2017
Рік: 2017
Рік: 2017
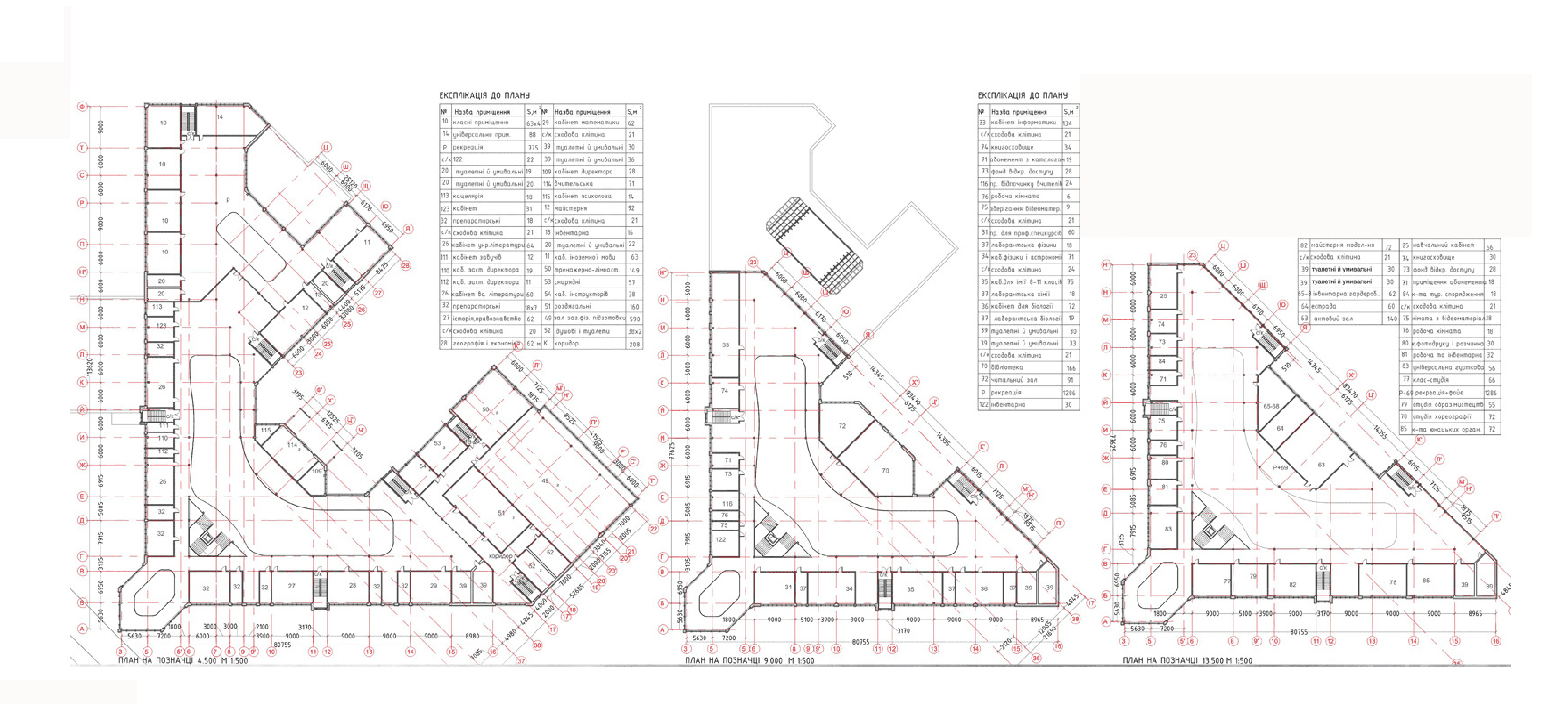
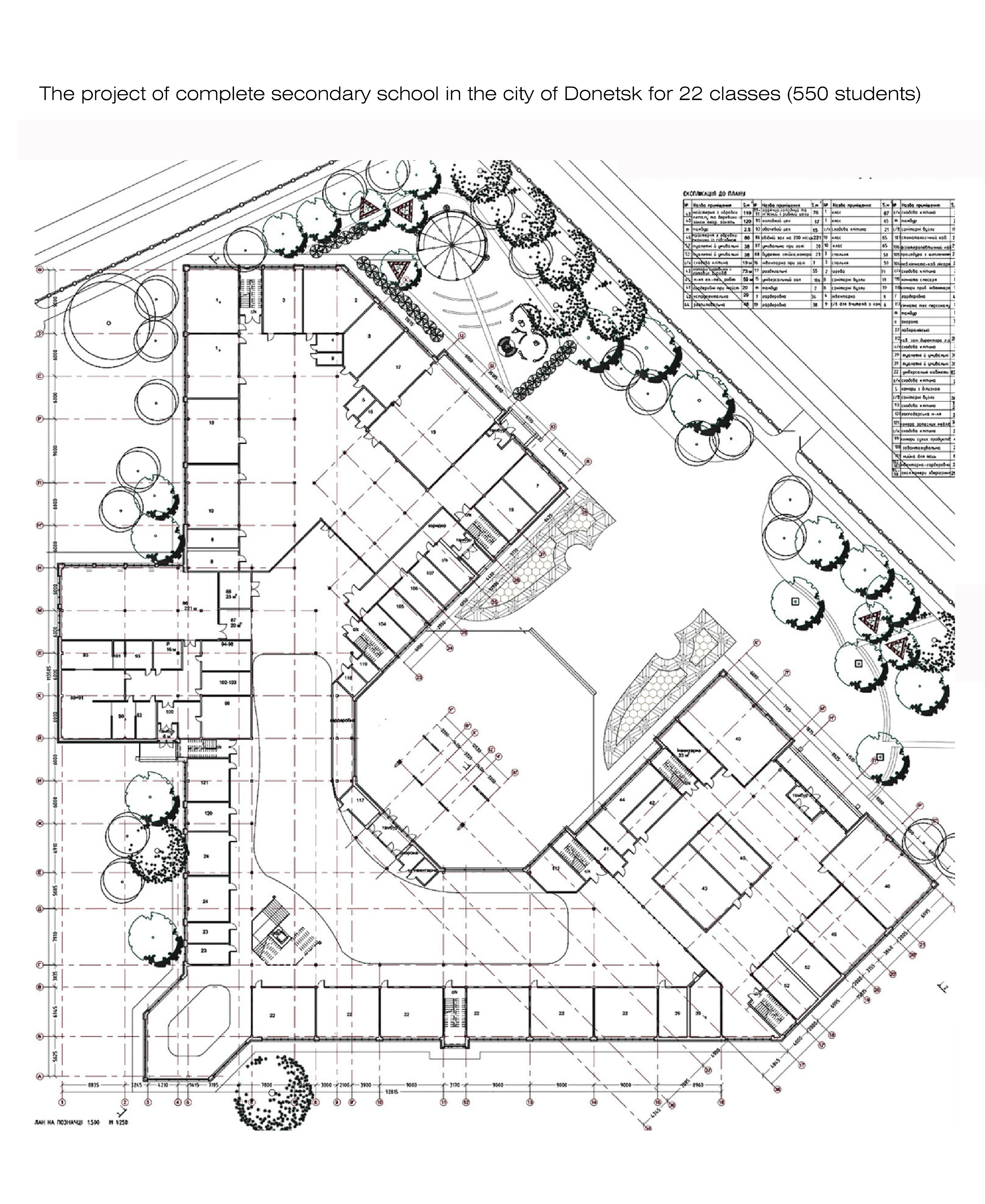
Середня школа на 550 учнів — проєкт, спрямований на відновлення та підвищення якості освітнього середовища. Архітектурна концепція побудована з урахуванням правильної орієнтації будівлі, що забезпечує оптимальне природне освітлення навчальних просторів.
Ключовим елементом проєкту є атріум як простір взаємодії, комунікації та неформального навчання. Школа спроєктована з метою створення комфортного, мотивуючого середовища, яке безпосередньо сприяє покращенню рівня освіти та розвитку учнів.
Середня школа на 550 учнів — проєкт, спрямований на відновлення та підвищення якості освітнього середовища. Архітектурна концепція побудована з урахуванням правильної орієнтації будівлі, що забезпечує оптимальне природне освітлення навчальних просторів.
Ключовим елементом проєкту є атріум як простір взаємодії, комунікації та неформального навчання. Школа спроєктована з метою створення комфортного, мотивуючого середовища, яке безпосередньо сприяє покращенню рівня освіти та розвитку учнів.
Середня школа на 550 учнів — проєкт, спрямований на відновлення та підвищення якості освітнього середовища. Архітектурна концепція побудована з урахуванням правильної орієнтації будівлі, що забезпечує оптимальне природне освітлення навчальних просторів.
Ключовим елементом проєкту є атріум як простір взаємодії, комунікації та неформального навчання. Школа спроєктована з метою створення комфортного, мотивуючого середовища, яке безпосередньо сприяє покращенню рівня освіти та розвитку учнів.
Архітектура, соціальний проєкт
Архітектура, соціальний проєкт
Архітектура, соціальний проєкт











